Проспект Тауелсиздик, 34/9
ЖК "Созак"
Цена
x ₸
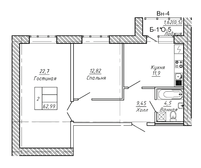
Квадратура
62,99
Отделка
Черновая
Вход
Общий
Комнаты
2
Этаж
Подъезд
Материал
Высота потолка
Описание
Жилой комплекс «Созак» – многоэтажная новостройка с практичными квартирами комфорт-класса, расположенная вблизи культурного и административного центра столицы.
Класс ЖК:Комфорт
Кол-во этажей:13
Кол-во подъездов:6
Срок сдачи:IV квартал 2022 год
Инфраструктура
ЖК SOZAK – тринадцатиэтажная новостройка с собственной инфраструктурой, в которой удачно сочетаются достижения современной строительной отрасли с оригинальными архитектурными решениями.
Комплекс сооружается по надежной кирпичной технологии. Внешние стены из красного кирпича утепляются экологически безопасным теплоизолятором, производится звукоизоляция между этажами и квартирами.
Фасад новостройки облицовывается декоративной штукатуркой, и оформляется в бежевом, сером и терракотовом цвете. Предусмотрена подсветка фасада в ночное время
В районе комплекса прекрасная инфраструктура, которая способна обеспечить все потребности современного жителя столицы. Поблизости новостройки есть:
парки Центральный, Президентский, Студенческий, Жеруйык, Набережная на гребном канале;
бизнес-центры;
торговые центры Astana Mall, Altay center, караоке-клуб, кинотеатр «Евразия Cinema 7», боулинг-клуб и развлекательный центр «Евразия»,
кафе, рестораны, заведения быстрого питания, суши-бары, пабы;
спортивные комплексы «Алатау» и «Толкын»;
салоны красоты, спа-салоны;
магазины, сетевые супермаркеты;
мечеть «Хазрет Султан».
Связаться

Проспект Тауелсиздик, 34/9
ЖК "Созак"
Цена
x ₸
Квадратура
62,99
Отделка
Черновая
Вход
Общий
Комнаты
2
Этаж
Подъезд
Материал
Высота потолка
Описание
Жилой комплекс «Созак» – многоэтажная новостройка с практичными квартирами комфорт-класса, расположенная вблизи культурного и административного центра столицы.
Класс ЖК:Комфорт
Кол-во этажей:13
Кол-во подъездов:6
Срок сдачи:IV квартал 2022 год
Инфраструктура
ЖК SOZAK – тринадцатиэтажная новостройка с собственной инфраструктурой, в которой удачно сочетаются достижения современной строительной отрасли с оригинальными архитектурными решениями.
Комплекс сооружается по надежной кирпичной технологии. Внешние стены из красного кирпича утепляются экологически безопасным теплоизолятором, производится звукоизоляция между этажами и квартирами.
Фасад новостройки облицовывается декоративной штукатуркой, и оформляется в бежевом, сером и терракотовом цвете. Предусмотрена подсветка фасада в ночное время
В районе комплекса прекрасная инфраструктура, которая способна обеспечить все потребности современного жителя столицы. Поблизости новостройки есть:
парки Центральный, Президентский, Студенческий, Жеруйык, Набережная на гребном канале;
бизнес-центры;
торговые центры Astana Mall, Altay center, караоке-клуб, кинотеатр «Евразия Cinema 7», боулинг-клуб и развлекательный центр «Евразия»,
кафе, рестораны, заведения быстрого питания, суши-бары, пабы;
спортивные комплексы «Алатау» и «Толкын»;
салоны красоты, спа-салоны;
магазины, сетевые супермаркеты;
мечеть «Хазрет Султан».
Связаться

Проспект Тауелсиздик, 34/9
ЖК "Созак"
Цена
x ₸
Квадратура
62,99
Отделка
Черновая
Вход
Общий
Комнаты
2
Этаж
Подъезд
Материал
Высота потолка
Описание
Жилой комплекс «Созак» – многоэтажная новостройка с практичными квартирами комфорт-класса, расположенная вблизи культурного и административного центра столицы.
Класс ЖК:Комфорт
Кол-во этажей:13
Кол-во подъездов:6
Срок сдачи:IV квартал 2022 год
Инфраструктура
ЖК SOZAK – тринадцатиэтажная новостройка с собственной инфраструктурой, в которой удачно сочетаются достижения современной строительной отрасли с оригинальными архитектурными решениями.
Комплекс сооружается по надежной кирпичной технологии. Внешние стены из красного кирпича утепляются экологически безопасным теплоизолятором, производится звукоизоляция между этажами и квартирами.
Фасад новостройки облицовывается декоративной штукатуркой, и оформляется в бежевом, сером и терракотовом цвете. Предусмотрена подсветка фасада в ночное время
В районе комплекса прекрасная инфраструктура, которая способна обеспечить все потребности современного жителя столицы. Поблизости новостройки есть:
парки Центральный, Президентский, Студенческий, Жеруйык, Набережная на гребном канале;
бизнес-центры;
торговые центры Astana Mall, Altay center, караоке-клуб, кинотеатр «Евразия Cinema 7», боулинг-клуб и развлекательный центр «Евразия»,
кафе, рестораны, заведения быстрого питания, суши-бары, пабы;
спортивные комплексы «Алатау» и «Толкын»;
салоны красоты, спа-салоны;
магазины, сетевые супермаркеты;
мечеть «Хазрет Султан».
Связаться

Фото и Видео




Фото и Видео




Фото и Видео






